Butterfly House

Custom residence using angled wings to balance privacy and views on a constrained site.

Project Summary

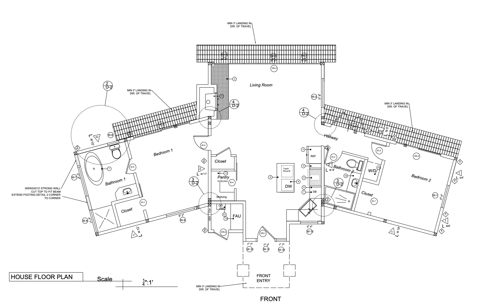
The Butterfly House is a single-family residence arranged around a central living and dining core with bedroom wings offset at 15-degree angles. This organizing move creates unique view relationships and privacy between rooms while maintaining a cohesive plan geometry.

Design Strategy

Bedrooms are shifted off the central core at 15-degree increments, creating spatial privacy and oriented exposures for views and light. Passive solar played a key role in orientation and overhang design, with glass deployed extensively on southern exposures to allow winter solar gain and shaded during summer months.

Performance & Systems

  • Envelope: High-performance enclosure designed with both energy efficiency and wildfire exposure in mind. Walls use 2 inches of continuous exterior Rockwool insulation, with roof assemblies increasing to 2.5 inches, reducing thermal bridging while providing a resilient mineral wool layer behind exterior finishes. Roof and wall assemblies are detailed as non-vented to limit ember intrusion and reduce ignition risk.

  • Windows: Triple-pane aluminum window frames housing tempered glass, selected for durability, ember resistance, and thermal performance in a high fire-risk area.

  • Air sealing: Continuous air barrier achieved using Intello membrane in conjunction with Henry VP100, supporting airtightness, moisture control, and reduced smoke infiltration.

  • Mechanical systems: Heating and cooling provided by concealed duct mini-split systems, allowing efficient zoned conditioning with minimal visual impact.

  • Energy systems: Fully off-grid electrical system with a 10 kW photovoltaic array paired with SolArk inverter chargers and a lithium iron phosphate battery storage system, supporting independent operation without utility connection.

  • Fire-aware detailing: Assembly and system selections emphasize ignition resistance and controlled fire response, including exterior mineral wool insulation, metal window frames with tempered glazing, DensGlass sheathing behind eave finish materials, a standing seam metal roof over continuous insulation, non-vented assemblies, and fire sprinklers integrated at the eaves.

Materials & Construction

The building is constructed on a concrete slab with radiant floor heating installed over 2 inches of closed cell foam insulation. The primary structure is conventional wood framing, with large gluelam beams used at ceilings to support the building’s angled roof geometry.

Exterior walls are clad in vertically oriented old growth sugar pine siding reclaimed from recent wildfires. The siding is installed over exterior Rockwool insulation. Roofs are finished with standing seam metal roofing. Soffits are constructed with reclaimed old growth Douglas fir installed over Type X gypsum board.

Windows and doors are triple pane aluminum European units.

Interior materials include Douglas fir ceilings installed over the Intello air barrier, white oak cabinetry, hardwood flooring, and tadelakt wall finishes in select bathroom areas.

Outcome

The 15° House resolves a compact residential program through a series of angled volumes that balance privacy, views, and daylight. Interior spaces remain clearly organized while allowing variation in orientation and exposure across the plan.

The completed building supports year round use with stable interior conditions, on site energy generation, and assemblies detailed for durability and long term maintenance. The project demonstrates an integrated approach to spatial planning, construction, and environmental response without reliance on complex systems or excessive material layering.

Next
Next

Yuba Overlook